压力损失试验在图1c)或图1d)试验装置上进行,压差测量采用压差计或压力传感器。试验介质采
用相对应的惰性气体灭火剂或压缩空气,试验介质起始压力为 20C时对应相应系统的贮存压力。
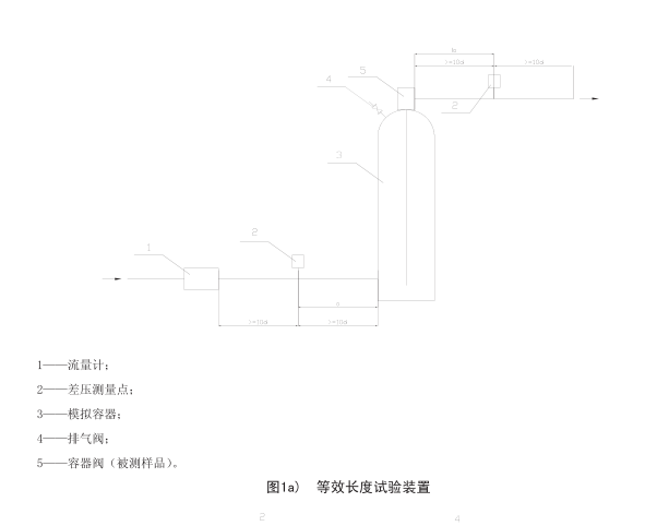
容器阀的压力损失在图 1c)所示试验装置上进行,容器的容积不小于 90 L,容器阀进口侧和出口侧
设取压点,出口侧取样点的位置为容器阀出口所接直管上至少为管内径10 倍长度处,位置见图1c)。直
管段末端接喷嘴(个数应与实际应用所接喷嘴数一致)或接等效于所接喷嘴孔径的孔板。试验时测取压
力损失曲线并与生产单位值进行比较。
选择阀、单向阀、管件的压力损失在图1d)所示试验装置上进行,气源的气量应至少能保证1min
的试验用气量,在被测样品的进出口端各连接一直管,在直管上至少为管内径10倍长度处设测压点,
位置见图1d)。出口侧直管段末端接喷嘴(个数应与实际应用所接喷嘴数一致)或接等效于所接喷嘴孔
径的孔板。试验时测取压力损失曲线并与生产单位值进行比较。


|